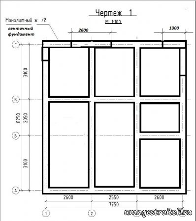
Чертеж ленточного фундамента.Доброго времени суток Уважаемые посетители сайта по строительству umnyestroiteli.ru. В такой теме как " Ленточный фундамент чертеж ", Мы поговорим про особенности чертежа ленточного фундамента. Научимся читать чертеж ленточного фундамента и конечно же научимся чертить ленточный фундамент, со всеми сносками и отметками. Ленточный фундамент чертеж. предисловие. Я сам, по образованию являюсь инженер архитектор, так что в свое время с чертежами ленточного фундамента сталкивался не один раз, но больше конечно намучались с нагрузкой на ленточный фундамент, с расчетом её, но сейчас не об этом. Ленточный фундамент, а именно чертеж ленточного фундамента просто читается и если чертеж составлял скрупулезный инженер, то такой чертеж ленточного фундамента просто читать и воплощать в жизнь. Ведь чертеж ленточного фундамента, каким он сложным бы не был, имеет вид сверху, а другие сложные элементы, которые могут и не быть вложены в чертеж, ну например опоры для лестниц, входной фундамент чертится отдельно но на основном чертеже ленточного фундамента вид которого с верху, тоже указывается. Думаю самое время обсудить ленточный фундамент в чертеже, разберемся на ярком примере с низу, вид простого чертежа без сносок и размеров, ленточный фундамент чертеж траншеи. Ленточный фундамент, чертеж траншеи. Из данного чертежа ленточной траншеи мы видим что, есть две оси, горизонтальная и вертикальная, отмеченные латинскими цифрами 1 и 2. Данная ось, на чертеже задает центр ленточного фундамента, считается обязательной отметкой и наносится штрих пунктиром. На чертеже самого ленточного фундамента она обязательно должна быть. Мелкими русскими буквами (а, б, в, г) на чертеже ленточного фундамента отмечены центры основного, несущего ленточного фундамента, где делящие оси фундамент на пополам а и б -это горизонтальные отметки, а в, г- это вертикальные центровые оси, предназначенные задать центры постройки. На чертеже ленточного фундамента они так же будут вынесены как штрих пунктир, и являются не обязательными отметками на основном чертеже, можно ставить можно нет. Обычные цифры на чертеже 1-1 и 2-2, 3-3, 4-4 и т.д, обозначают центры перегородок ленточного фундамента, которые могут быть, а могут и не быть на чертеже, в зависимости от планировки дома. Думаю пора представить Ленточный фундамент чертеж которого показан со всеми отметками и обговорить его. Ленточный фундамент чертеж. Как видим, ленточный фундамент, чертеж его, легко читается и все отметке на чертеже проставлены по центру ленточного фундамента, это показан размер дома, а какой толщины будет ваш ленточный фундамент решать вам, это можно показать на чертеже, выведя на правую сторону чертежа, если ваш ленточный фундамент шире 0.5 метров или уже. Черточки на любых чертежах, прерывающие все длинные линии, показывающие размер, ставятся по часовой стрелке, то есть наклонены в правую, а не в левую сторону. Делается сноска на чертеже, на которой показано из чего будет сделан ленточный фундамент. Чертеж сборного ленточного фундамента.Чертеж ленточного сборного фундамента выглядит также как и чертеж ленточного монолитного фундамента, только выводится отметка железобетонного блока целого и углового, обычно это половинка, ну например так: Статья Ленточный фундамент чертеж, подарена копирайтером, для сайта Строительство от а до я.Енакиево-Донецк. Расскажи друзьям о чём читал!
Объявления: Статьи касающиеся этой темы: Случайные материалы по ремонту и строительству:
Вернуться |

Просмотров: 46 959






