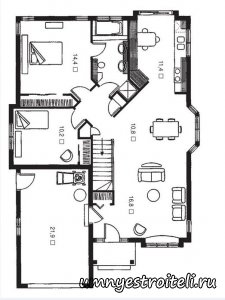
Проект коттеджа " Традиционная элегантность ".Представительный, в Канадском стиле элегантный коттедж с элегантным внешним порталом и одушевленными витражными дверями, выглядит очень традиционно, и данный проект представляет несомненный интерес заказчиков с устоявшимися консервативными вкусами и стилевыми предпочтениями. Тем не менее схема и планировка, а так же оборудование здания полностью отвечает самым современным к комфортабельному семейному жилью: просторная гостиная, светлая столовая с внутренним эркером, кухонное помещение с выходом кругозора в сад, две спальные комнаты с гардеробными комнатами и достаточно огромная ванная комната с естественным освещением. К коттеджу по плану пристроен гараж, площадь гаражного помещения позволяет использовать часть гаража в качестве домашней мастерской, что довольно предпочтительно для людей которые не имеют привычки, сидеть сложа руки. Общая площадь проекта коттеджа "Традиционная элегантность- 96,0 м2; Гостиная комната- 16,8 м2; Столовая центр- 10,8 м2; Две спальные комнаты по плану- 14,4; 10,2 м2 Площадь гарожа по плану 21, 9 м2; Расскажи друзьям о чём читал!
Объявления: Статьи касающиеся этой темы: Случайные материалы по ремонту и строительству:
Вернуться |

Просмотров: 6 435






