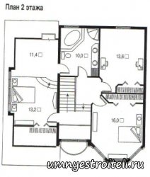
Проект коттеджа в Американском стиле с названием- "Гармония линий".Внешний облик дома определяется сочетанием четких прямых линий и плавных изгибов. По обе стороны от входной двери, над которой расположен полукруглый балкон с фигурными балясинами ограждения, разместились гараж и двухэтажный эркер. Находящиеся на первом этаже коттеджа кухня, гостиная комната (в эркере) и столовое помещение образуют единое пространство, а вот на втором этаже коттеджа по плану— приватная зона: три комфортабельные спальни и размещена ванная комната. Одна или первая из спален оборудована в эркере, другая снабжена гардеробной, к ней также с небольшим перепадом уровней примыкает комната отдыха, откуда можно попасть в ванную. На первом этаже коттеджа есть санузел и прачечная; в гараже — два входа или входа: вход с дома и вход с улицы. Проект коттеджа-площадь 1 этажа — 75,5 м2; Прихожая (1) —13,6 м2; Гостиная — 23,6 м2; Кухня — 13,1 м2; Столовая —13,7 м2; Санузел —11,5 м2; План коттеджа гармония линий-площадь 2 этажа — 71,2 м2; Большой Холл — 7,0 м2; Спальня — 16,0; 13,6; 13,2 м2; Комната отдыха — 11,4 м2; Ванная комната —10,0 м2; Общая площадь — 146,7 м2; Расскажи друзьям о чём читал!
Объявления: Статьи касающиеся этой темы: Случайные материалы по ремонту и строительству:
Вернуться |

Просмотров: 9 321






